На продажу €1,490,000
КОД SUN1247A
Лимассол
Готово к заселению
Kolossi
Вилла
Покрытый: 584m²

Продается жилое и коммерческое здания в Лимассоле, деревня Колосси


Современное здание в деревне Колосси, Лимассол на продажу коммерческие и жилые единицы.

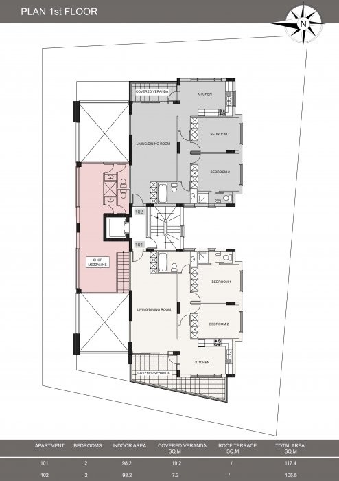
На первом этаже здания расположен магазин 137 кв. м. с мезонином площадью 45 кв. м.

Первый этаж здания предлагает две, две спальни квартиры с кухней открытой планировки, две спальни, главная спальня с ванной комнатой, семейная ванная комната, крытая парковка, кладовка, окна с двойным остеклением, балконы, общий лифт.

Квартира 1: 98кв.м плюс 19.2кв.м открытой площади

Квартира 2: 98кв.м. Плюс 7.3кв.м открытой площади

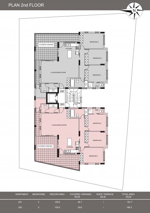
Верхний этаж (второй) предлагает апартаменты с двумя, тремя спальнями с кухней открытой планировки, двумя спальнями, главной спальней с ванной комнатой, семейной ванной комнатой, крытой парковкой, кладовкой, окнами с двойным остеклением, балконами, общим лифтом.

Квартира 1: 125 кв. м. плюс 36 кв. м. открытой площади + 120 кв. м. сад на крыше

Квартира 2: 125 кв. м. Плюс 30кв.м открытой площади

Цена 1,490,000 Евро + НДС

Аэропорт: 30 минут на машине
Вид на горы
Вид на море 
Кладовка
Крытая частная парковка 
Магазины рядом 
Пляж: 5 минут на машине
Рядом школа 
Тихое место
САЙТ ИСПОЛЬЗУЕТ COOKIES
Мы используем cookies, чтобы Ваше пребывание на нашем сайте было наиболее комфортным. Если Вы остаетесь на сайте, это автоматически означает, что Вы согласны с использование всех cookies данного сайта. Пожалуйста, ознакомьтесь с нашей политикой cookies.